Descrizione

Sulle alture di Domodossola, con vista mozzafiato, ti propongo in vendita questa antica abitazione, completamente da ristrutturare.

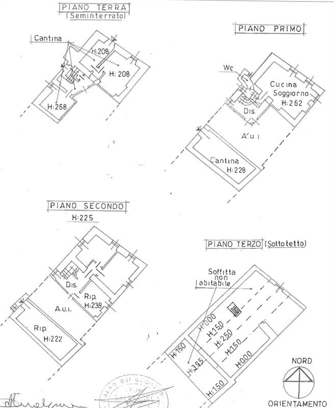
Composta da vari locali distribuiti su 3 piani è attualmente priva di alcun impianto e necessita di una ristrutturazione integrale.
Completa la proprietà orto/giardino di circa 500 mq posto di fronte alla casa.

Posizione ottima, vicino alla natura e a pochi Km dal centro di Domodossola, ben si presta sia come prima abitazione sia per creare una struttura ricettiva, vista l'alta richiesta di alloggi turistici nella stessa area.

Lasciati affascinare dalla storia che assaporerai camminando sugli antichi pavimenti o osservando le stanze dipinte!

Dai un’occhiata alla planimetria che trovi nell'area documenti e al video che trovi in calce all’annuncio sul mio sito o sul mio canale Youtube (NEST_HOME Immobiliare), potresti scoprire che è proprio quello che stavi cercando!


CHIAMAMI se vuoi visitarla! Sono disponibile anche per una Video Call o visita virtuale!



NEST HOME IMMOBILIARE! Tutti hanno bisogno di un nido… e di un’agenzia itinerante! Scopri di più su www.nest-home.it o contattami al numero +39 342.8071531 o via mail nesthomeimmobiliare@gmail.com


Caratteristiche principali

Stato Immobile
Da Ristrutturare
Grado
Medio
Posizione
Collina
Panorama
Vista Monti
Orientamento
Nord Ovest Sud Est
Lati Liberi
4
Giardino
Privato
Riscaldamento
No
Tipo Impianto
No
Acqua Calda
Assente
Raffrescamento
No
Infissi
Legno
Serramenti
Da Sostituire
Persiana
Persiana Legno
Pavim. Giorno
Parquet
Pavim. Notte
Parquet
Pavim. Cucina
Parquet
Pavim. Bagno
Parquet
Accesso Disabili
No
Accesso interno disabili
Non accessibile
Isolamento
Non presente
Isolamento termico
Nessuno
Accessori: Camino

Mappa

Borgata Asparedo SNC, Domodossola (VB)

Video

Cookie preference